The Coolidge
Overview
Features
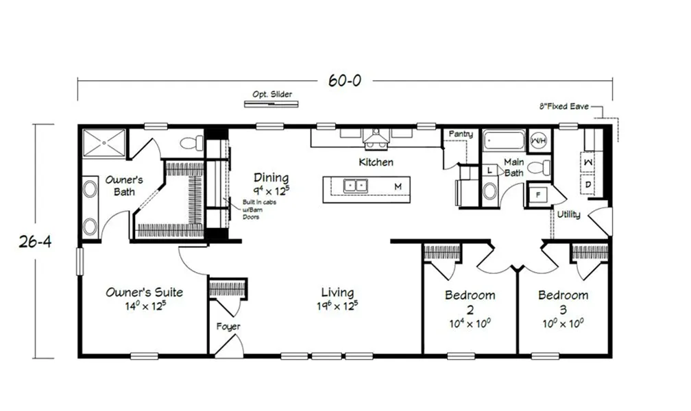
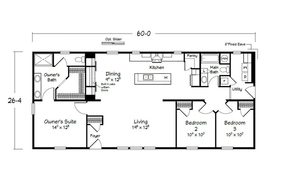
Floor Plan
- IN STOCK
- SALE
The Coolidge
BEFORE OPTIONS
3 beds
2 baths
1,680 sq. ft.
† Images may show options not included in base price
Overview
This home provides a cozy feeling as soon as you walk through the front door. The Coolidge offers quality craftmanship from the smooth drywall walls and ceilings to the handmade cabinets and quarts countertops.
Features
Drywall Throughout
Smooth Ceilings
Hand Made Cabinets
Quartz Counter Tops
Stainless-ST Appliances
Stand Alone Shower
Walk-in Panrty
Walk-in Closets
Custamized Floor Plan
Optional Fireplace
Floor Plan

Homes built with you in mind
We accept trades!
Find a new home you love? Contact us for more information about our trade-in requirements and to schedule your free trade evaluation.
Learn MoreTake the next step
† Advertised starting sales prices are for the home only. Delivery and installation costs are not included unless otherwise stated. Starting prices shown on this website are subject to change, see your local Home Center for current and specific home and pricing information. Sales price does not include other costs such as taxes, title fees, insurance premiums, filing or recording fees, land or improvements to the land, optional home features, optional delivery or installation services, wheels and axles, community or homeowner association fees, or any other items not shown on your Sales Agreement, Retailer Closing Agreement and related documents (your SA/RCA). If you purchase a home, your SA/RCA will show the details of your purchase. Homes available at the advertised sales price will vary by retailer and state. Artists’ renderings of homes are only representations and actual home may vary. Floor plan dimensions are approximate and based on length and width measurements from exterior wall to exterior wall. We invest in continuous product and process improvement. All home series, floor plans, specifications, dimensions, features, materials, and availability shown on this website are subject to change.








